产品展示
IM网页版页面登录
电话:0523-87542388
手机:13815979819
E-mail:txhenshun388@126.com
网址:www.lvphp.com
地址:江苏省泰兴市城东工业园二环路园区段南侧
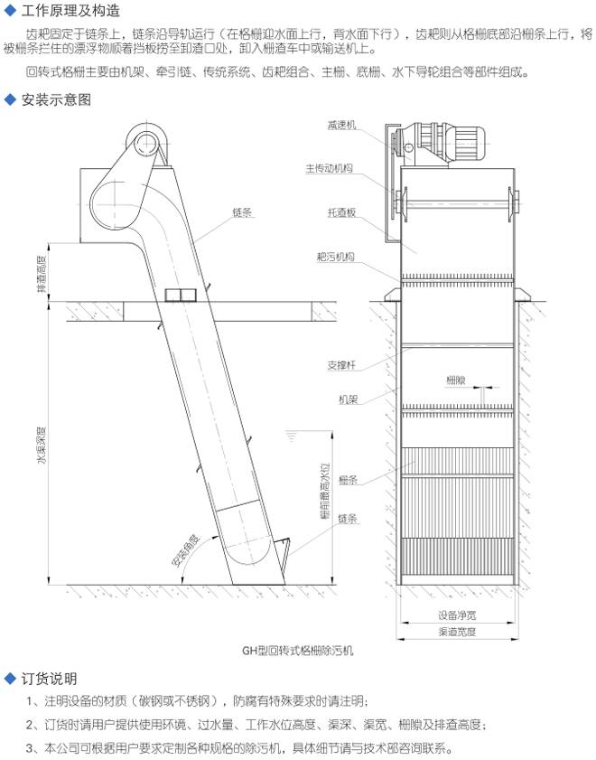
GH型回转式格栅除污机
发布时间:2021-12-09 09:40:01 人气:2919 来源:本站



上一篇:YGS型移动式液压抓斗清污机
下一篇:LYZ型螺旋输送压榨机
相关新闻
- 通江县城乡供水巩固提升工程项目浮船发货啦 2025-09-17
- 湖北孝昌水厂取水浮船发货啦 2025-02-16
- 巴中市农村供水提升泵站工程浮船发货啦 2024-12-09
- 泰兴市政协副主席周桂香深入我司调研--共谋高质量发展新篇章 2024-09-03
- 天津河东-机床排水临时泵站发货啦~ 2024-09-02
- 泰兴市委书记张坤赴基层调研并宣讲党的二十届三中全会精神 2024-08-27
- 我司参观江苏科兴电器有限公司并开展深度交流 2024-08-23
- 山西运城取水浮船泵站发货啦 2024-07-11
- 黑河市布拉戈维申斯克泵站项目一体化泵站 2024-06-05
- 云南省临沧市耿马连通工程浮船泵站发货啦 2024-04-01




客服